TOPWORKSREPORTACCESS
五反田の積箱壁
2005年
内装設計/50m2
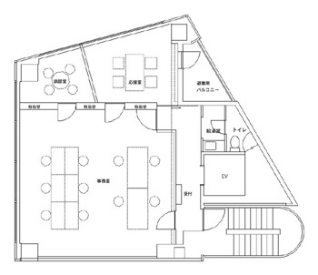
品川区五反田の事務所の内装計画です。
従業員数は5人の事務所です。ワンルームの執務空間と、会議室がひとつ、休憩室がひとつという構成です。執務空間と個室との間仕切りを積層した壁に見立て、色の付いている箱は自由に取り出すことができます。また、箱の背の一部は色付きアクリルの板になっており、お互いの部屋の様子を伺うことができます。ただの間仕切り壁をつくるのではなく、壁でもあり棚でもある仕切りを計画しました。